
รายละเอียดบ้าน
- 
								แบบบ้าน3 ชั้น
 7 ห้องนอน
 7 ห้องน้ำ
 ที่จอดรถ 4 คัน
 
- 
								พื้นที่ใช้สอย471 ตร.ม.
 
- 
								ขนาดที่ดิน130 ตร.ว.
 
- 
								ขนาดตัวบ้าน26.00 x 9.70 ม.
 
- 
								ขนาดที่สร้างได้32.00 x 15.70 ม.
 
- 
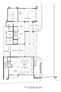
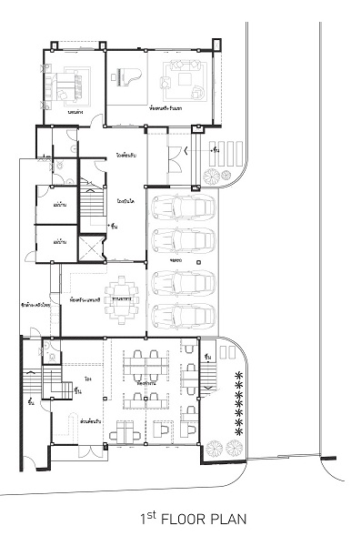
								ชั้นที่ 1
- 
								ชั้นที่ 2
- 
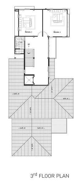
								ชั้นที่ 3



















 
								



 
				
				
